Objekt 12 von 17
Nächstes Objekt
Vorheriges Objekt
Zurück zur Übersicht
code
Zurück zur Übersicht
Nächstes Objekt
Vorheriges Objekt
Zurück zur ÜbersichtSanta Margalida: Imposantes Stadthaus zur freien Gestaltung, 544m², 3 Etagen, 13 Zimmer, Garten Terrassen, Zisterne
Objekt-Nr.: 1972-25ES
Schnellkontakt
Videos zum Objekt
Videos zum Objekt
Optionen
Optionen
Basisinformationen
Adresse:
07450 Santa Margalida
Islas Baleares
Islas Baleares
Region:
Mallorca
Preis:
325.000 €
Wohnfläche ca.:
312 m²
Grundstück ca.:
344 m²
Zimmeranzahl:
13
Weitere Informationen
Weitere Informationen
Haustyp:
Stadthaus
Etagenanzahl:
3
Provisionspflichtig:
nein
Nutzfläche ca.:
232 m²
Anzahl Schlafzimmer:
5
Anzahl Badezimmer:
2
Balkon:
1
Terrasse:
2
Anzahl der Parkflächen:
1
Anzahl der Parkflächen:
1 x Garage
Baujahr:
1935
Verfügbar ab:
sofort
Zustand:
renovierungsbedürftig
Befeuerungsart:
Elektro
Energieausweistyp:
Energieausweis liegt zur Besichtigung vor
Beschreibung
Beschreibung
Objektbeschreibung:
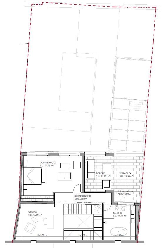
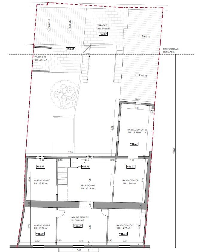
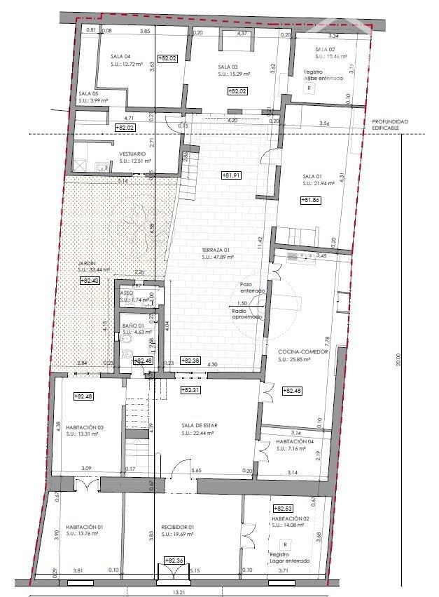
Dieses Stadthaus im Herzen von Santa Margalida bietet mit rund 544 m² bebauter Fläche und drei Etagen enormes Potenzial für individuelle Wohnkonzepte. Ob großzügiges Einfamilienhaus, Mehrgenerationenlösung oder als Aufteilungsprojekt mit mehreren Wohneinheiten – die Struktur des Hauses eröffnet zahlreiche Möglichkeiten.
Die Immobilie steht auf einem ca. 334 m² großen Grundstück in ruhiger, aber zentraler Lage – fußläufig zu Geschäften, Restaurants und dem charmanten Ortskern. Aktuell umfasst das Haus rund 13 Räume, verteilt auf drei Etagen mit mehreren Eingangsbereichen. Die vorhandene Raumtiefe, Deckenhöhe und Struktur eignen sich ideal für eine Neugestaltung nach Maß.
Der Garten im hinteren Teil des Grundstücks lädt zur Schaffung eines privaten Außenbereichs ein – hier sind z. B. ein Patio mit Lounge-Bereich, ein kleiner Pool oder eine mediterrane Bepflanzung denkbar. Das Obergeschoss bietet die Möglichkeit zur Erweiterung durch eine zusätzliche Terrasse mit Blick ins Grüne.
Das Highlight befindet sich im Dachgeschoss: eine bereits vorhandene, großzügige Dachterrasse mit Weitblick über die Dächer von Santa Margalida. Die angrenzenden Räume eignen sich perfekt für kreative Nutzung – ob Atelier, Gästezimmer oder Arbeitsbereich mit Zugang ins Freie.
Die Grundstruktur des Gebäudes ist solide, doch bedarf es einer vollständigen Sanierung, um das volle Potenzial dieser Immobilie auszuschöpfen.
Besonders attraktiv für Investoren: Das Haus bietet die Möglichkeit zur Aufteilung in drei Wohneinheiten, ähnlich wie das benachbarte Mehrfamilienhaus, und schafft so flexibles Nutzungspotenzial.
Nach der Sanierung wird dieses Stadthaus zu einem exklusiven und modernen Rückzugsort, der höchsten Ansprüchen an Komfort und Stil gerecht wird – eine herausragende Gelegenheit für alle, die in das besondere Flair Mallorcas investieren möchten.
Vereinbaren Sie noch heute einen Besichtigungstermin.
Die Immobilie steht auf einem ca. 334 m² großen Grundstück in ruhiger, aber zentraler Lage – fußläufig zu Geschäften, Restaurants und dem charmanten Ortskern. Aktuell umfasst das Haus rund 13 Räume, verteilt auf drei Etagen mit mehreren Eingangsbereichen. Die vorhandene Raumtiefe, Deckenhöhe und Struktur eignen sich ideal für eine Neugestaltung nach Maß.
Der Garten im hinteren Teil des Grundstücks lädt zur Schaffung eines privaten Außenbereichs ein – hier sind z. B. ein Patio mit Lounge-Bereich, ein kleiner Pool oder eine mediterrane Bepflanzung denkbar. Das Obergeschoss bietet die Möglichkeit zur Erweiterung durch eine zusätzliche Terrasse mit Blick ins Grüne.
Das Highlight befindet sich im Dachgeschoss: eine bereits vorhandene, großzügige Dachterrasse mit Weitblick über die Dächer von Santa Margalida. Die angrenzenden Räume eignen sich perfekt für kreative Nutzung – ob Atelier, Gästezimmer oder Arbeitsbereich mit Zugang ins Freie.
Die Grundstruktur des Gebäudes ist solide, doch bedarf es einer vollständigen Sanierung, um das volle Potenzial dieser Immobilie auszuschöpfen.
Besonders attraktiv für Investoren: Das Haus bietet die Möglichkeit zur Aufteilung in drei Wohneinheiten, ähnlich wie das benachbarte Mehrfamilienhaus, und schafft so flexibles Nutzungspotenzial.
Nach der Sanierung wird dieses Stadthaus zu einem exklusiven und modernen Rückzugsort, der höchsten Ansprüchen an Komfort und Stil gerecht wird – eine herausragende Gelegenheit für alle, die in das besondere Flair Mallorcas investieren möchten.
Vereinbaren Sie noch heute einen Besichtigungstermin.
Ausstattung:
Kabel Sat TV •
- Ca. 544 m² bebaute Fläche laut Kataster
- 3 Etagen mit vielseitiger Raumaufteilung
- Ca. 334 m² Grundstück
- Rund 13 nutzbare Räume
- Garten mit Potenzial für Patio, Pool oder Terrassenbereich
- Große Dachterrasse im 2. Obergeschoss mit Weitblick
- Möglichkeit zur Aufteilung in mehrere Wohneinheiten
- Solide Bausubstanz – vollständige Renovierung empfohlen
- Stadtwasser- und Stromanschluss vorhanden
- Zentrale, ruhige Lage in Santa Margalida
Sogenannte „Stadthäuser“ bieten entscheidende Vorteile:
- Zentrale Lage und „Leben in einer Gemeinde“
- Restaurants und Cafés fußläufig erreichbar
- Anschluss an Versorger (Wasser, Strom, Abwasser, Internet)
- Einbruchschutz durch zentrale Lage
- Geringer Pflegeaufwand im Vergleich zu einer Finca mit Landgrundstück
Wenn Sie die Risiken beim Immobilienkauf auf Mallorca als Kapitalanlage vermeiden wollen, dann lassen Sie sich durch unsere Immobilienprofis beraten.
Energiezertifikate sind auch in Spanien verpflichtend bei Immobilien, werden jedoch häufig aufgrund der Gültigkeit erst kurz vor Verkauf erstellt. Der im Exposé angegebene Wert ist bei Nichtvorliegen daher auf niedrigstem Niveau angegeben und kann sich nach Erstellung deutlich verbessern.
- Ca. 544 m² bebaute Fläche laut Kataster
- 3 Etagen mit vielseitiger Raumaufteilung
- Ca. 334 m² Grundstück
- Rund 13 nutzbare Räume
- Garten mit Potenzial für Patio, Pool oder Terrassenbereich
- Große Dachterrasse im 2. Obergeschoss mit Weitblick
- Möglichkeit zur Aufteilung in mehrere Wohneinheiten
- Solide Bausubstanz – vollständige Renovierung empfohlen
- Stadtwasser- und Stromanschluss vorhanden
- Zentrale, ruhige Lage in Santa Margalida
Sogenannte „Stadthäuser“ bieten entscheidende Vorteile:
- Zentrale Lage und „Leben in einer Gemeinde“
- Restaurants und Cafés fußläufig erreichbar
- Anschluss an Versorger (Wasser, Strom, Abwasser, Internet)
- Einbruchschutz durch zentrale Lage
- Geringer Pflegeaufwand im Vergleich zu einer Finca mit Landgrundstück
Wenn Sie die Risiken beim Immobilienkauf auf Mallorca als Kapitalanlage vermeiden wollen, dann lassen Sie sich durch unsere Immobilienprofis beraten.
Energiezertifikate sind auch in Spanien verpflichtend bei Immobilien, werden jedoch häufig aufgrund der Gültigkeit erst kurz vor Verkauf erstellt. Der im Exposé angegebene Wert ist bei Nichtvorliegen daher auf niedrigstem Niveau angegeben und kann sich nach Erstellung deutlich verbessern.
Lage:
Die Gemeinde Santa Margalida liegt rund 45 Kilometer von der Inselhauptstadt Palma entfernt. Sie ist Teil der Region (Comarca) Plà de Mallorca oder Es Plà, der großen Ebene der Inselmitte.
Der Ort besitzt eine lange Tradition in der Landwirtschaft und im Kunsthandwerk.
Ein Spaziergang durch die alten Straßen des Dorfes oder durch die zahlreichen ländlichen Straßen der Gemeinde lässt Sie schöne Orte und Landschaften voller Natur, Geschichte und Erbe kennenzulernen. In der Nähe finden wir einige der schönsten Strände der Insel, wie Can Picafort und Pollenca.
Die Gemeinde gehört historisch zu den wohlhabenden Gemeinden der Insel und verfügt daher auch über schöne Bauwerke, deren Restaurierung oftmals wahre Schätze zum Vorschein bringt, dazu gehören Natursteinmauer, Rundbögen oder traumhaft kühle Innenhöfe, die nicht selten Platz für einen Pool bieten.
Der klar strukturierte Ort besteht überwiegend aus typischen mallorquinen Stadthäusern bzw. Villen mit entsprechenden Grundstücken. Die meisten Häuser verfügen über kleine, meist erfrischend kühle Innenhöfe (Patio), oder sogar kleine Gärten.
In Sta. Margalida finden sie ganzjährig geöffnet neben diversen Restaurants und Bars alle Dinge des täglichen Bedarfs, Supermärkte, Banken, Friseure, Kosmetik, Massage und Post.
Der Ort besitzt eine lange Tradition in der Landwirtschaft und im Kunsthandwerk.
Ein Spaziergang durch die alten Straßen des Dorfes oder durch die zahlreichen ländlichen Straßen der Gemeinde lässt Sie schöne Orte und Landschaften voller Natur, Geschichte und Erbe kennenzulernen. In der Nähe finden wir einige der schönsten Strände der Insel, wie Can Picafort und Pollenca.
Die Gemeinde gehört historisch zu den wohlhabenden Gemeinden der Insel und verfügt daher auch über schöne Bauwerke, deren Restaurierung oftmals wahre Schätze zum Vorschein bringt, dazu gehören Natursteinmauer, Rundbögen oder traumhaft kühle Innenhöfe, die nicht selten Platz für einen Pool bieten.
Der klar strukturierte Ort besteht überwiegend aus typischen mallorquinen Stadthäusern bzw. Villen mit entsprechenden Grundstücken. Die meisten Häuser verfügen über kleine, meist erfrischend kühle Innenhöfe (Patio), oder sogar kleine Gärten.
In Sta. Margalida finden sie ganzjährig geöffnet neben diversen Restaurants und Bars alle Dinge des täglichen Bedarfs, Supermärkte, Banken, Friseure, Kosmetik, Massage und Post.
Sonstiges:
Illustrationen, Fotos & Musteransichten enthalten zur besseren Verdeutlichung Ausführungsdetails, Einrichtungsgegenstände und Ansichten, die in der finalen Ausführung zum Teil abweichen können, nicht im Angebot enthalten, oder Bestandteile einer separaten Verhandlung/Angebots sind. Flächenangaben stammen aus dem öffentlichen Kataster oder dem Grundbuch, diese können in Spanien insbesondere bei älteren Gebäuden abweichen. Bitte fragen Sie uns zu weiteren Optionen.
Verbindliche Grundlage zum Kauf bildet der Optionsvertrag und/oder die notarielle Beurkundung.
Bei Interesse erfragen Sie bitte unser ausführliches Exposé oder ergänzende Unterlagen. Sie bevorzugen ein klassisches Print-Exposé? Sprechen Sie uns an!
Gerne ermöglichen wir Ihnen einen ersten, eindrucksvollen Besichtigungstermin. Überzeugen Sie sich in entspannter Atmosphäre von der Exklusivität und Einzigartigkeit dieses Anwesens und lassen Sie die Eindrücke vor Ort in aller Ruhe wirken.
Ein wichtiger Hinweis zum sensiblen Thema "EU-DSGVO":
Wenn Sie uns Ihre Daten über ein Immobilienportal (z.B. immobilienscout24.de) übermitteln, so werden Ihre Daten lediglich für vier Wochen aufbewahrt, um den Exposéversand sowie eine mögliche Terminvereinbarung für eine Objektbesichtigung möglich zu machen. Nach Ablauf der vier Wochen werden Ihre Daten unwiderruflich gelöscht! Wir werden Ihnen weder neue Angebote noch einen nicht erwünschten Newsletter zukommen lassen.
Selbstverständlich können Sie Ihr Immobiliengesuch in unserer Datenbank unverbindlich und kostenfrei dauerhaft hinterlegen. Somit würden Sie in Zukunft durch uns ganz automatisch über neue Objekte informiert werden. Besuchen Sie hierzu bitte unsere eigene Homepage. Dort finden Sie im ´Footer´ den Link "Suchauftrag" bzw. Sie nutzen einfach folgenden Link: https://home4you.info
Das gesamte Team von home4you Immobilien sagt „Herzlichen Dank für Ihr Vertrauen“.
Verbindliche Grundlage zum Kauf bildet der Optionsvertrag und/oder die notarielle Beurkundung.
Bei Interesse erfragen Sie bitte unser ausführliches Exposé oder ergänzende Unterlagen. Sie bevorzugen ein klassisches Print-Exposé? Sprechen Sie uns an!
Gerne ermöglichen wir Ihnen einen ersten, eindrucksvollen Besichtigungstermin. Überzeugen Sie sich in entspannter Atmosphäre von der Exklusivität und Einzigartigkeit dieses Anwesens und lassen Sie die Eindrücke vor Ort in aller Ruhe wirken.
Ein wichtiger Hinweis zum sensiblen Thema "EU-DSGVO":
Wenn Sie uns Ihre Daten über ein Immobilienportal (z.B. immobilienscout24.de) übermitteln, so werden Ihre Daten lediglich für vier Wochen aufbewahrt, um den Exposéversand sowie eine mögliche Terminvereinbarung für eine Objektbesichtigung möglich zu machen. Nach Ablauf der vier Wochen werden Ihre Daten unwiderruflich gelöscht! Wir werden Ihnen weder neue Angebote noch einen nicht erwünschten Newsletter zukommen lassen.
Selbstverständlich können Sie Ihr Immobiliengesuch in unserer Datenbank unverbindlich und kostenfrei dauerhaft hinterlegen. Somit würden Sie in Zukunft durch uns ganz automatisch über neue Objekte informiert werden. Besuchen Sie hierzu bitte unsere eigene Homepage. Dort finden Sie im ´Footer´ den Link "Suchauftrag" bzw. Sie nutzen einfach folgenden Link: https://home4you.info
Das gesamte Team von home4you Immobilien sagt „Herzlichen Dank für Ihr Vertrauen“.
Provision:
Als Käufer bezahlen Sie bei uns keine Maklerprovision
Anmerkung:
Die von uns gemachten Informationen beruhen auf Angaben des Verkäufers bzw. der Verkäuferin. Für die Richtigkeit und Vollständigkeit der Angaben kann keine Gewähr bzw. Haftung übernommen werden. Ein Zwischenverkauf und Irrtümer sind vorbehalten.
AGB:
Wir weisen auf unsere Allgemeinen Geschäftsbedingungen hin. Durch weitere Inanspruchnahme unserer Leistungen erklären Sie die Kenntnis und Ihr Einverständnis.
AUF WUNSCH empfehlen wir Ihnen Finanzierungsexperten von namhaften Häusern wie der Bausparkasse Mainz, der Deutschen Vermögensberatung und anderen.
Zurück zur Übersicht






































