Objekt 14 von 21
Nächstes Objekt
Vorheriges Objekt
Zurück zur Übersicht
Zurück zur Übersicht
Nächstes Objekt
Vorheriges Objekt
Zurück zur ÜbersichtFelanitx: Exklusiver Neubau mit Pool in Felanitx, 300 m², 3 SZ, 3 Bäder, Patio, Garage, Hightech-Ausstattung
Objekt-Nr.: 2060-26ES
Schnellkontakt
Videos zum Objekt
Videos zum Objekt
Zusätzliches Infomaterial
Zusätzliches Infomaterial
Optionen
Optionen
Basisinformationen
Adresse:
07200 Felanitx
Islas Baleares
Islas Baleares
Region:
Mallorca
Preis:
839.000 €
Wohnfläche ca.:
300 m²
Grundstück ca.:
180 m²
Zimmeranzahl:
5
Weitere Informationen
Weitere Informationen
Haustyp:
Stadthaus
Etagenanzahl:
2
Provisionspflichtig:
nein
Anzahl Schlafzimmer:
3
Anzahl Badezimmer:
3
Terrasse:
1
Kamin:
ja
Pool:
ja
Keller:
voll unterkellert
Klimaanlage:
ja
Anzahl der Parkflächen:
1
Anzahl der Parkflächen:
1 x Garage
Möbliert:
Teilmöbliert
Baujahr:
2025
Verfügbar ab:
sofort
Zustand:
Erstbezug
Heizung:
Fußboden
Befeuerungsart:
Wärmepumpe
Energieklasse:
B
Beschreibung
Beschreibung
Objektbeschreibung:
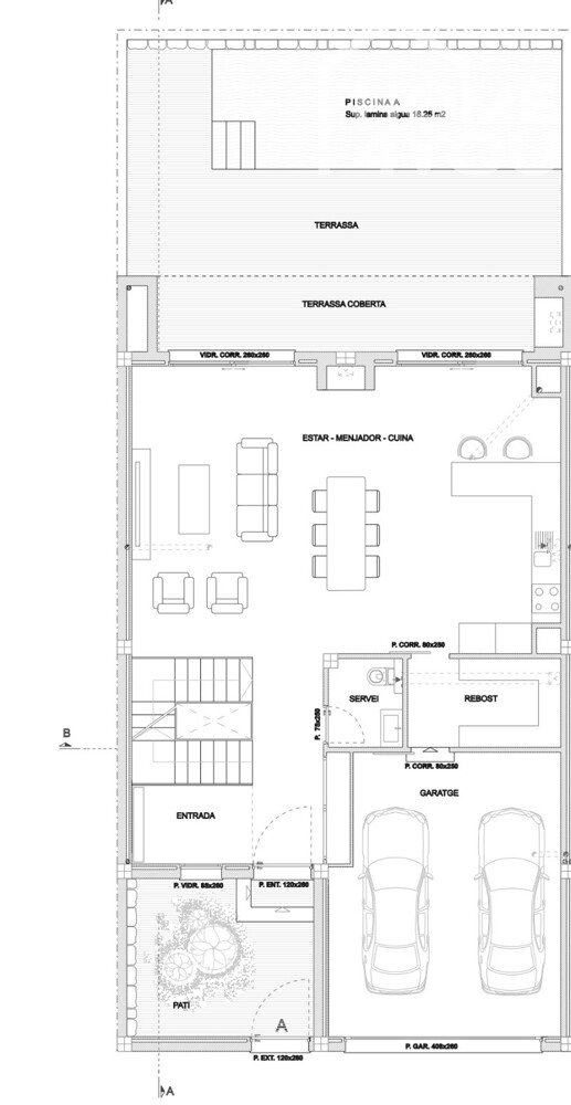
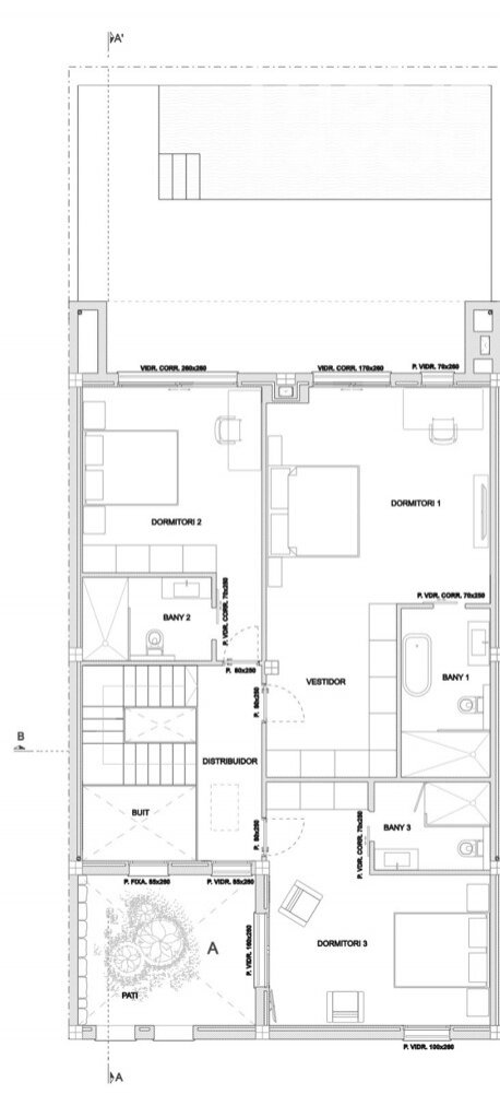
Diese exklusive Neubau-Doppelhaushälfte in Felanitx vereint modernes Design, mediterrane Materialien und durchdachte Architektur auf höchstem Niveau. Mit ca. 300 m² Wohnfläche und einer Grundstücksfläche von ca. 180 m² bietet dieses Stadthaus ein großzügiges und zugleich funktionales Raumkonzept – ideal als Hauptwohnsitz oder stilvolles Feriendomizil.
Schon beim Betreten des Hauses empfängt Sie ein offener Patio mit Naturstein und Olivenbaum – ein lichtdurchfluteter Innenhof, der dem Haus Ruhe und besondere Atmosphäre verleiht.
Der Wohnbereich im Erdgeschoss ist offen und klar strukturiert: Wohn-, Essbereich und Küche verschmelzen zu einem kommunikativen Herzstück. Große Glasschiebetüren schaffen einen fließenden Übergang zur sonnigen Terrasse mit Pool – ein Ort zum Entspannen, Feiern oder Genießen unter freiem Himmel.
Im Obergeschoss befinden sich drei Schlafzimmer – alle mit Bad en suite. Hochwertige Materialien wie Holzlamellen, Naturstein, doppelt verglaste Fenster und moderne Klimaanlage (warm/kalt) sorgen für Komfort und Ambiente.
Ein besonderes Plus ist das Untergeschoss mit Ausbaupotenzial: Ob Fitnessraum, Weinkeller, Heimkino oder Hobbyfläche – hier entstehen individuelle Möglichkeiten auf über 80 m² zusätzlicher Nutzfläche.
Die Garage bietet Platz für ein Fahrzeug, ergänzt durch Technikraum, Waschplatz oder Stauraum.
Der Einstiegspreis beginnt bei 839.000 € – je nach Ausstattungskonfiguration. Das Preis-Leistungs-Verhältnis ist angesichts der hochwertigen Bauqualität und Ausstattung ausgesprochen attraktiv für die Region.
Ein Haus, das modernes Wohnen und mediterrane Lebensqualität vereint – mitten in Felanitx. Kontaktieren Sie uns für eine Beratung oder zur Vereinbarung eines Besichtigungstermins.
Schon beim Betreten des Hauses empfängt Sie ein offener Patio mit Naturstein und Olivenbaum – ein lichtdurchfluteter Innenhof, der dem Haus Ruhe und besondere Atmosphäre verleiht.
Der Wohnbereich im Erdgeschoss ist offen und klar strukturiert: Wohn-, Essbereich und Küche verschmelzen zu einem kommunikativen Herzstück. Große Glasschiebetüren schaffen einen fließenden Übergang zur sonnigen Terrasse mit Pool – ein Ort zum Entspannen, Feiern oder Genießen unter freiem Himmel.
Im Obergeschoss befinden sich drei Schlafzimmer – alle mit Bad en suite. Hochwertige Materialien wie Holzlamellen, Naturstein, doppelt verglaste Fenster und moderne Klimaanlage (warm/kalt) sorgen für Komfort und Ambiente.
Ein besonderes Plus ist das Untergeschoss mit Ausbaupotenzial: Ob Fitnessraum, Weinkeller, Heimkino oder Hobbyfläche – hier entstehen individuelle Möglichkeiten auf über 80 m² zusätzlicher Nutzfläche.
Die Garage bietet Platz für ein Fahrzeug, ergänzt durch Technikraum, Waschplatz oder Stauraum.
Der Einstiegspreis beginnt bei 839.000 € – je nach Ausstattungskonfiguration. Das Preis-Leistungs-Verhältnis ist angesichts der hochwertigen Bauqualität und Ausstattung ausgesprochen attraktiv für die Region.
Ein Haus, das modernes Wohnen und mediterrane Lebensqualität vereint – mitten in Felanitx. Kontaktieren Sie uns für eine Beratung oder zur Vereinbarung eines Besichtigungstermins.
Ausstattung:
Kabel Sat TV •
Highlights & Ausstattung:
- ca. 300 m² Wohn-/Nutzfläche auf 3 Ebenen
- 3 Schlafzimmer mit jeweils Bad en suite
- moderner Neubau mit Baujahr 2025
- lichtdurchfluteter Patio mit Olivenbaum
- sonnige Terrasse mit Swimmingpool
- großer Keller mit Ausbaupotenzial (z. B. Fitness, Heimkino, Weinkeller)
- hochwertige Materialien: Naturstein, Holz, Glas
- doppelt verglaste Fenster
- Klimaanlage (warm/kalt)
- Fußbodenheizung mit Wärmepumpe
- Garage für 1 Fahrzeug
- Stadtwasser- und GESA-Stromanschluss
- Südausrichtung für optimale Lichtverhältnisse
- zentrale, ruhige Lage in Felanitx
Optionale Sonderausstattung gegen Aufpreis:
- Außenküche
- Photovoltaikanlage
- Ladestation für E-Auto
- SAT-Anlage oder Starlink
- KNX Smart-Home-System
Sogenannte „Stadthäuser“ bieten entscheidende Vorteile:
- Zentrale Lage und „Leben in einer Gemeinde“
- Restaurants und Cafés fußläufig erreichbar
- Anschluss an Versorger (Wasser, Strom, Abwasser, Internet)
- Einbruchschutz durch zentrale Lage
- Geringer Pflegeaufwand im Vergleich zu einer Finca mit Landgrundstück
Wenn Sie die Risiken beim Immobilienkauf auf Mallorca als Kapitalanlage vermeiden wollen, dann lassen Sie sich durch unsere Immobilienprofis beraten.
Felanitx gehört derzeit zu den gefragtesten Lagen auf Mallorca. Laut aktuellen Marktanalysen verzeichnete die Region 2024 den stärksten Anstieg der Immobilienpreise in ganz Spanien. Die kontinuierlich steigende Nachfrage sowie das authentische Ortsbild machen Felanitx sowohl für Eigennutzer als auch für Investoren besonders attraktiv.
Lesen Sie mehr dazu im ausführlichen Marktbericht:
https://home4you.info/felanitx-verzeichnet-den-hoechsten-anstieg-der-immobilienpreise-in-spanien-2024/
Highlights & Ausstattung:
- ca. 300 m² Wohn-/Nutzfläche auf 3 Ebenen
- 3 Schlafzimmer mit jeweils Bad en suite
- moderner Neubau mit Baujahr 2025
- lichtdurchfluteter Patio mit Olivenbaum
- sonnige Terrasse mit Swimmingpool
- großer Keller mit Ausbaupotenzial (z. B. Fitness, Heimkino, Weinkeller)
- hochwertige Materialien: Naturstein, Holz, Glas
- doppelt verglaste Fenster
- Klimaanlage (warm/kalt)
- Fußbodenheizung mit Wärmepumpe
- Garage für 1 Fahrzeug
- Stadtwasser- und GESA-Stromanschluss
- Südausrichtung für optimale Lichtverhältnisse
- zentrale, ruhige Lage in Felanitx
Optionale Sonderausstattung gegen Aufpreis:
- Außenküche
- Photovoltaikanlage
- Ladestation für E-Auto
- SAT-Anlage oder Starlink
- KNX Smart-Home-System
Sogenannte „Stadthäuser“ bieten entscheidende Vorteile:
- Zentrale Lage und „Leben in einer Gemeinde“
- Restaurants und Cafés fußläufig erreichbar
- Anschluss an Versorger (Wasser, Strom, Abwasser, Internet)
- Einbruchschutz durch zentrale Lage
- Geringer Pflegeaufwand im Vergleich zu einer Finca mit Landgrundstück
Wenn Sie die Risiken beim Immobilienkauf auf Mallorca als Kapitalanlage vermeiden wollen, dann lassen Sie sich durch unsere Immobilienprofis beraten.
Felanitx gehört derzeit zu den gefragtesten Lagen auf Mallorca. Laut aktuellen Marktanalysen verzeichnete die Region 2024 den stärksten Anstieg der Immobilienpreise in ganz Spanien. Die kontinuierlich steigende Nachfrage sowie das authentische Ortsbild machen Felanitx sowohl für Eigennutzer als auch für Investoren besonders attraktiv.
Lesen Sie mehr dazu im ausführlichen Marktbericht:
https://home4you.info/felanitx-verzeichnet-den-hoechsten-anstieg-der-immobilienpreise-in-spanien-2024/
Lage:
Felanitx liegt im Südosten Mallorcas, umgeben von sanften Hügeln, Weinbergen und weiten Feldern. Die Nähe zur Natur prägt das Ortsbild ebenso wie die entspannte Atmosphäre. Bis nach Palma sind es etwa 40 Minuten mit dem Auto, die Strände der Ostküste sind in ca. 20 Minuten erreichbar.
Das historische Zentrum von Felanitx ist geprägt von traditioneller mallorquinischer Bauweise. Natursteinfassaden, massive Holztüren und Innenhöfe mit Patios bestimmen das Straßenbild. Viele Häuser stammen aus dem 18. und 19. Jahrhundert und wurden in den letzten Jahren behutsam modernisiert.
Im Ort selbst gibt es eine gute Infrastruktur mit Supermärkten, Cafés, Restaurants, Handwerkern und einem großen Wochenmarkt am Sonntag. Schulen, Ärzte und Apotheken sind vorhanden, ebenso wie kleinere Galerien und Ateliers. Die Umgebung ist bekannt für ihre Weingüter und Wanderwege.
Die Menschen in Felanitx sind tief mit ihrer Region verwurzelt. Gleichzeitig wächst das internationale Interesse – neue Bewohner finden hier ein offenes, bodenständiges Umfeld und werden in die Dorfgemeinschaft eingebunden.
Felanitx bietet ein authentisches Lebensumfeld auf Mallorca – mit Substanz, gewachsenen Strukturen und einem Lebensrhythmus, der auf Ruhe und Beständigkeit setzt.
Das historische Zentrum von Felanitx ist geprägt von traditioneller mallorquinischer Bauweise. Natursteinfassaden, massive Holztüren und Innenhöfe mit Patios bestimmen das Straßenbild. Viele Häuser stammen aus dem 18. und 19. Jahrhundert und wurden in den letzten Jahren behutsam modernisiert.
Im Ort selbst gibt es eine gute Infrastruktur mit Supermärkten, Cafés, Restaurants, Handwerkern und einem großen Wochenmarkt am Sonntag. Schulen, Ärzte und Apotheken sind vorhanden, ebenso wie kleinere Galerien und Ateliers. Die Umgebung ist bekannt für ihre Weingüter und Wanderwege.
Die Menschen in Felanitx sind tief mit ihrer Region verwurzelt. Gleichzeitig wächst das internationale Interesse – neue Bewohner finden hier ein offenes, bodenständiges Umfeld und werden in die Dorfgemeinschaft eingebunden.
Felanitx bietet ein authentisches Lebensumfeld auf Mallorca – mit Substanz, gewachsenen Strukturen und einem Lebensrhythmus, der auf Ruhe und Beständigkeit setzt.
Sonstiges:
Illustrationen, Fotos & Musteransichten enthalten zur besseren Verdeutlichung Ausführungsdetails, Einrichtungsgegenstände und Ansichten, die in der finalen Ausführung zum Teil abweichen können, nicht im Angebot enthalten, oder Bestandteile einer separaten Verhandlung/Angebots sind. Flächenangaben stammen aus dem öffentlichen Kataster oder dem Grundbuch, diese können in Spanien insbesondere bei älteren Gebäuden abweichen. Bitte fragen Sie uns zu weiteren Optionen.
Verbindliche Grundlage zum Kauf bildet der Optionsvertrag und/oder die notarielle Beurkundung.
Bei Interesse erfragen Sie bitte unser ausführliches Exposé oder ergänzende Unterlagen. Sie bevorzugen ein klassisches Print-Exposé? Sprechen Sie uns an!
Gerne ermöglichen wir Ihnen einen ersten, eindrucksvollen Besichtigungstermin. Überzeugen Sie sich in entspannter Atmosphäre von der Exklusivität und Einzigartigkeit dieses Anwesens und lassen Sie die Eindrücke vor Ort in aller Ruhe wirken.
Ein wichtiger Hinweis zum sensiblen Thema "EU-DSGVO":
Wenn Sie uns Ihre Daten über ein Immobilienportal (z.B. immobilienscout24.de) übermitteln, so werden Ihre Daten lediglich für vier Wochen aufbewahrt, um den Exposéversand sowie eine mögliche Terminvereinbarung für eine Objektbesichtigung möglich zu machen. Nach Ablauf der vier Wochen werden Ihre Daten unwiderruflich gelöscht! Wir werden Ihnen weder neue Angebote noch einen nicht erwünschten Newsletter zukommen lassen.
Selbstverständlich können Sie Ihr Immobiliengesuch in unserer Datenbank unverbindlich und kostenfrei dauerhaft hinterlegen. Somit würden Sie in Zukunft durch uns ganz automatisch über neue Objekte informiert werden. Besuchen Sie hierzu bitte unsere eigene Homepage. Dort finden Sie im ´Footer´ den Link "Suchauftrag" bzw. Sie nutzen einfach folgenden Link: https://home4you.info
Das gesamte Team von home4you Immobilien sagt „Herzlichen Dank für Ihr Vertrauen“.
Verbindliche Grundlage zum Kauf bildet der Optionsvertrag und/oder die notarielle Beurkundung.
Bei Interesse erfragen Sie bitte unser ausführliches Exposé oder ergänzende Unterlagen. Sie bevorzugen ein klassisches Print-Exposé? Sprechen Sie uns an!
Gerne ermöglichen wir Ihnen einen ersten, eindrucksvollen Besichtigungstermin. Überzeugen Sie sich in entspannter Atmosphäre von der Exklusivität und Einzigartigkeit dieses Anwesens und lassen Sie die Eindrücke vor Ort in aller Ruhe wirken.
Ein wichtiger Hinweis zum sensiblen Thema "EU-DSGVO":
Wenn Sie uns Ihre Daten über ein Immobilienportal (z.B. immobilienscout24.de) übermitteln, so werden Ihre Daten lediglich für vier Wochen aufbewahrt, um den Exposéversand sowie eine mögliche Terminvereinbarung für eine Objektbesichtigung möglich zu machen. Nach Ablauf der vier Wochen werden Ihre Daten unwiderruflich gelöscht! Wir werden Ihnen weder neue Angebote noch einen nicht erwünschten Newsletter zukommen lassen.
Selbstverständlich können Sie Ihr Immobiliengesuch in unserer Datenbank unverbindlich und kostenfrei dauerhaft hinterlegen. Somit würden Sie in Zukunft durch uns ganz automatisch über neue Objekte informiert werden. Besuchen Sie hierzu bitte unsere eigene Homepage. Dort finden Sie im ´Footer´ den Link "Suchauftrag" bzw. Sie nutzen einfach folgenden Link: https://home4you.info
Das gesamte Team von home4you Immobilien sagt „Herzlichen Dank für Ihr Vertrauen“.
Provision:
Bei Abschluss eines Kaufvertrages wird eine Vermittlungs-/ Nachweisprovision in Höhe von 3,57 % inklusive 19 % Mehrwertsteuer auf den Kaufpreis vom Käufer fällig.
Anmerkung:
Die von uns gemachten Informationen beruhen auf Angaben des Verkäufers bzw. der Verkäuferin. Für die Richtigkeit und Vollständigkeit der Angaben kann keine Gewähr bzw. Haftung übernommen werden. Ein Zwischenverkauf und Irrtümer sind vorbehalten.
AGB:
Wir weisen auf unsere Allgemeinen Geschäftsbedingungen hin. Durch weitere Inanspruchnahme unserer Leistungen erklären Sie die Kenntnis und Ihr Einverständnis.
AUF WUNSCH empfehlen wir Ihnen Finanzierungsexperten von namhaften Häusern wie der Bausparkasse Mainz, der Deutschen Vermögensberatung und anderen.
Zurück zur Übersicht

















