Objekt 5 von 17
Nächstes Objekt
Vorheriges Objekt
Zurück zur Übersicht
code
Zurück zur Übersicht
Nächstes Objekt
Vorheriges Objekt
Zurück zur ÜbersichtLeichlingen: Kapitalanleger aufgepasst: Aktives Bahnhofsgebäude mit Top Rendite, Gastronomie, Kiosk & 4 Wohnungen
Objekt-Nr.: 1990-25DE
Schnellkontakt
Videos zum Objekt
Videos zum Objekt
Optionen
Optionen
Basisinformationen
Adresse:
42799 Leichlingen
Rheinisch-Bergischer Kreis
Nordrhein-Westfalen
Rheinisch-Bergischer Kreis
Nordrhein-Westfalen
Preis:
1.490.000 €
Wohnfläche ca.:
800 m²
Grundstück ca.:
663 m²
Zimmeranzahl:
25
Weitere Informationen
Weitere Informationen
Etagenanzahl:
3
Provision:
3,00 % des Kaufpreises zzgl. gesetzlicher MwSt., f
Nutzfläche ca.:
89,59 m²
Anzahl Schlafzimmer:
9
Anzahl Badezimmer:
4
Terrasse:
1
Keller:
voll unterkellert
Denkmalschutzobjekt:
ja
vermietet:
ja
Anzahl der Parkflächen:
26
Baujahr:
1880
Verfügbar ab:
sofort
Zustand:
modernisiert
Befeuerungsart:
Gas
Energieausweistyp:
Dieses Gebäude unterliegt nicht den Anforderungen der GEG
Beschreibung
Beschreibung
Objektbeschreibung:
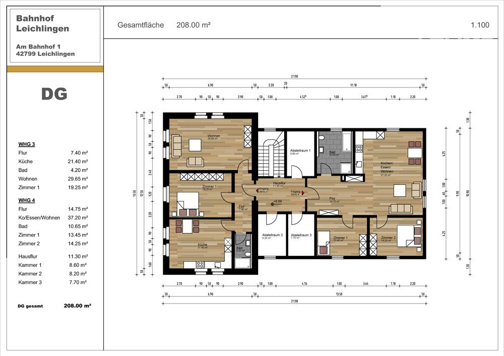
Einzigartige Kapitalanlage in Wohn-Geschäftsgebäude zum qm-Preis von 1.675 EUR.
Der imposante Bahnhof aus dem Jahr 1880 ist ganzjährig hoch frequentiert und zentraler Anlaufpunkt für Leichlingen und die gesamte Region. Er kombiniert historischen Charakter mit moderner Funktionalität und bietet vielfältige geschäftliche und private Nutzungsmöglichkeiten.
Nach einer umfassenden Kernsanierung im Jahr 1996 und der Modernisierung der letzten Wohnung 2021 präsentiert sich das Objekt in einem sehr guten Zustand. Es umfasst vier kernsanierte Wohnungen sowie Gastronomie- und Veranstaltungsflächen. Auf einem 663 m² großen Grundstück steht somit eine vermietbare Fläche von ca. 800 m² zur Verfügung, ergänzt durch Außenanlagen und einen Biergarten.
Das überregional bekannte Brauhaus "Aloysanium" im EG mit eigener Veranstaltungshalle und ein separater Kiosk sorgen für hohe Rentabilität, auch für die Betreiber. Zahlreiche Reisende, wie auch Einwohner in der Region lieben die herzhafte Küche des Restaurants und kommen teilweise aus weiterer Umgebung.
Die 4 aktuell gut vermieteten Wohnungen sorgen für eine stabile Grundfinanzierung und sind zudem als Betreiber-/ oder Mitarbeiterwohnungen bestens geeignet.
Die Berechnung der Flächen beträgt:
400 qm Wohnungen, 489,59 qm Gastronomie und Nutzfläche.
Alle Einheiten sind vollständig vermietet und das Gebäude erwirtschaftet derzeit eine jährliche Nettomiete von 73.500 €. Potenzial für Mietsteigerungen besteht.
Die Lage bietet eine exzellente Anbindung an die umliegenden Städte wie Köln, Düsseldorf, Leverkusen und das Ruhrgebiet.
In Kombination mit der genehmigten Abgeschlossenheit zur Teileigentumsbildung bietet das Objekt hervorragende Investitionsmöglichkeiten und langfristige Perspektiven.
Der imposante Bahnhof aus dem Jahr 1880 ist ganzjährig hoch frequentiert und zentraler Anlaufpunkt für Leichlingen und die gesamte Region. Er kombiniert historischen Charakter mit moderner Funktionalität und bietet vielfältige geschäftliche und private Nutzungsmöglichkeiten.
Nach einer umfassenden Kernsanierung im Jahr 1996 und der Modernisierung der letzten Wohnung 2021 präsentiert sich das Objekt in einem sehr guten Zustand. Es umfasst vier kernsanierte Wohnungen sowie Gastronomie- und Veranstaltungsflächen. Auf einem 663 m² großen Grundstück steht somit eine vermietbare Fläche von ca. 800 m² zur Verfügung, ergänzt durch Außenanlagen und einen Biergarten.
Das überregional bekannte Brauhaus "Aloysanium" im EG mit eigener Veranstaltungshalle und ein separater Kiosk sorgen für hohe Rentabilität, auch für die Betreiber. Zahlreiche Reisende, wie auch Einwohner in der Region lieben die herzhafte Küche des Restaurants und kommen teilweise aus weiterer Umgebung.
Die 4 aktuell gut vermieteten Wohnungen sorgen für eine stabile Grundfinanzierung und sind zudem als Betreiber-/ oder Mitarbeiterwohnungen bestens geeignet.
Die Berechnung der Flächen beträgt:
400 qm Wohnungen, 489,59 qm Gastronomie und Nutzfläche.
Alle Einheiten sind vollständig vermietet und das Gebäude erwirtschaftet derzeit eine jährliche Nettomiete von 73.500 €. Potenzial für Mietsteigerungen besteht.
Die Lage bietet eine exzellente Anbindung an die umliegenden Städte wie Köln, Düsseldorf, Leverkusen und das Ruhrgebiet.
In Kombination mit der genehmigten Abgeschlossenheit zur Teileigentumsbildung bietet das Objekt hervorragende Investitionsmöglichkeiten und langfristige Perspektiven.
Ausstattung:
Kabel Sat TV •
Das denkmalgeschützte Gebäude bietet eine durchdachte und vielseitige Ausstattung, die sowohl für gewerbliche als auch für Wohnnutzung bestens geeignet ist. Im Erdgeschoss steht eine großzügige Gastronomiefläche von 235 m² zur Verfügung, ausgestattet mit einer professionellen Küche, einer zentralen Thekenanlage und ca. 150 Sitzplätzen. Ergänzt wird das Angebot durch eine Veranstaltungshalle mit Platz für 100 Personen, einen Biergarten mit 60 Sitzplätzen und einen separaten Kiosk mit 65 m².
Die 4 sanierten Wohnungen, mit Flächen zwischen 85 m² und 115 m², zeichnen sich durch hohe Decken, Holzdielen, Sprossenfenster und stilvolle Türen aus.
Der Kellerbereich bietet zusätzliche Lagerräume, Kühlräume sowie separate WC-Anlagen. Eine Gaszentralheizung versorgt die Gastronomieflächen, während die vier Wohnungen in den Obergeschossen jeweils mit modernen Gas-Brennwert-Thermen ausgestattet sind und für eine hohe Energieeffizienz sorgen.
Zusätzlich verfügt das Gebäude über einen großzügigen Gewölbekeller, 26 gesicherte Stellplätze und ein kleines, unsaniertes Stellwerk, das weiteres Potenzial z.B. als Aussichts-Café bietet.
Das denkmalgeschützte Gebäude bietet eine durchdachte und vielseitige Ausstattung, die sowohl für gewerbliche als auch für Wohnnutzung bestens geeignet ist. Im Erdgeschoss steht eine großzügige Gastronomiefläche von 235 m² zur Verfügung, ausgestattet mit einer professionellen Küche, einer zentralen Thekenanlage und ca. 150 Sitzplätzen. Ergänzt wird das Angebot durch eine Veranstaltungshalle mit Platz für 100 Personen, einen Biergarten mit 60 Sitzplätzen und einen separaten Kiosk mit 65 m².
Die 4 sanierten Wohnungen, mit Flächen zwischen 85 m² und 115 m², zeichnen sich durch hohe Decken, Holzdielen, Sprossenfenster und stilvolle Türen aus.
Der Kellerbereich bietet zusätzliche Lagerräume, Kühlräume sowie separate WC-Anlagen. Eine Gaszentralheizung versorgt die Gastronomieflächen, während die vier Wohnungen in den Obergeschossen jeweils mit modernen Gas-Brennwert-Thermen ausgestattet sind und für eine hohe Energieeffizienz sorgen.
Zusätzlich verfügt das Gebäude über einen großzügigen Gewölbekeller, 26 gesicherte Stellplätze und ein kleines, unsaniertes Stellwerk, das weiteres Potenzial z.B. als Aussichts-Café bietet.
Lage:
Die Lage dieser Immobilie überzeugt durch ihre zentrale und hervorragend angebundene Position in Leichlingen, direkt am Bahnhof. Die Stadt bietet eine perfekte Kombination aus urbaner Infrastruktur und naturnaher Umgebung.
Für Bewohner wie Kapitalanleger ist die Umgebung ideal:
Die hohe Besuchsfrequenz des Bahnhofs, sowie des angeschlossenen ÖPNV machen den Bahnhof zum Objekt der Begierde unweit der Innenstadt.
Ein Kindergarten ist in nur 1,5 km Entfernung erreichbar, die Grundschule liegt nur 350 m entfernt. Weiterführende Schulen wie die Realschule (1,3 km) und das Gymnasium (1,4 km) befinden sich ebenfalls in unmittelbarer Nähe – ein großer Vorteil, sowohl für die Wohnungen, als auch die Gastronomie und den Kiosk.
Die Verkehrsanbindung lässt keine Wünsche offen. Der Bahnhof bietet schnelle Verbindungen in die umliegenden Städte wie Köln, Düsseldorf und Wuppertal. Die Autobahn A3 ist nur 2,3 km entfernt und ermöglicht eine bequeme Anfahrt mit dem Auto. Der Flughafen Düsseldorf liegt lediglich 32 km entfernt und ist in etwa 30 Minuten erreichbar – ideal für Berufspendler und Vielreisende.
Die Umgebung punktet zudem mit ihrer Vielfalt: Leichlingen ist bekannt für seine hohe Lebensqualität und verbindet städtischen Komfort mit ländlicher Idylle. Die Innenstadt bietet zahlreiche Einkaufsmöglichkeiten, Restaurants und einen beliebten Wochenmarkt. Gleichzeitig laden die umliegenden Natur- und Erholungsgebiete, insbesondere entlang der Wupper, zu Spaziergängen, Radtouren oder entspannten Wochenendausflügen ein.
Dank dieser einzigartigen Mischung aus hervorragender Infrastruktur, Bildungseinrichtungen in direkter Nähe und abwechslungsreichen Freizeitmöglichkeiten ist Leichlingen ein attraktiver und lebendiger Wohnort, der sowohl Ruhe als auch Anschluss an die pulsierenden Großstädte der Region bietet.
Für Bewohner wie Kapitalanleger ist die Umgebung ideal:
Die hohe Besuchsfrequenz des Bahnhofs, sowie des angeschlossenen ÖPNV machen den Bahnhof zum Objekt der Begierde unweit der Innenstadt.
Ein Kindergarten ist in nur 1,5 km Entfernung erreichbar, die Grundschule liegt nur 350 m entfernt. Weiterführende Schulen wie die Realschule (1,3 km) und das Gymnasium (1,4 km) befinden sich ebenfalls in unmittelbarer Nähe – ein großer Vorteil, sowohl für die Wohnungen, als auch die Gastronomie und den Kiosk.
Die Verkehrsanbindung lässt keine Wünsche offen. Der Bahnhof bietet schnelle Verbindungen in die umliegenden Städte wie Köln, Düsseldorf und Wuppertal. Die Autobahn A3 ist nur 2,3 km entfernt und ermöglicht eine bequeme Anfahrt mit dem Auto. Der Flughafen Düsseldorf liegt lediglich 32 km entfernt und ist in etwa 30 Minuten erreichbar – ideal für Berufspendler und Vielreisende.
Die Umgebung punktet zudem mit ihrer Vielfalt: Leichlingen ist bekannt für seine hohe Lebensqualität und verbindet städtischen Komfort mit ländlicher Idylle. Die Innenstadt bietet zahlreiche Einkaufsmöglichkeiten, Restaurants und einen beliebten Wochenmarkt. Gleichzeitig laden die umliegenden Natur- und Erholungsgebiete, insbesondere entlang der Wupper, zu Spaziergängen, Radtouren oder entspannten Wochenendausflügen ein.
Dank dieser einzigartigen Mischung aus hervorragender Infrastruktur, Bildungseinrichtungen in direkter Nähe und abwechslungsreichen Freizeitmöglichkeiten ist Leichlingen ein attraktiver und lebendiger Wohnort, der sowohl Ruhe als auch Anschluss an die pulsierenden Großstädte der Region bietet.
Sonstiges:
Hinweis: Illustrationen, Fotos & Musteransichten enthalten zur besseren Verdeutlichung Ausführungsdetails, Einrichtungsgegenstände und Ansichten, die in der finalen Ausführung zum Teil abweichen können, nicht im Angebot enthalten, oder Bestandteile einer separaten Verhandlung/Angebots sind.
Verbindliche Grundlage hierfür bildet die spätere Baubeschreibung, der Optionsvertrag und/oder die notarielle Beurkundung.Bei Interesse erfragen Sie bitte unser ausführliches Exposé über unser Büro. Sie bevorzugen ein klassisches Print-Exposé? Sprechen Sie uns an!
Gerne ermöglichen wir Ihnen einen ersten, eindrucksvollen Besichtigungstermin. Überzeugen Sie sich in entspannter Atmosphäre von der Exklusivität und Einzigartigkeit dieses Anwesens und lassen Sie die Eindrücke vor Ort in aller Ruhe wirken.
Ein wichtiger Hinweis zum sensiblen Thema "EU-DSGVO":
Wenn Sie uns Ihre Daten über ein Immobilienportal (z.B. immobilienscout24.de) übermitteln, so werden Ihre Daten lediglich für vier Wochen aufbewahrt, um den Exposéversand sowie eine mögliche Terminvereinbarung für eine Objektbesichtigung möglich zu machen. Nach Ablauf der vier Wochen werden Ihre Daten unwiderruflich gelöscht! Wir werden Ihnen weder neue Angebote noch einen nicht erwünschten Newsletter zukommen lassen.
Selbstverständlich können Sie Ihr Immobiliengesuch in unserer Datenbank unverbindlich und kostenfrei dauerhaft hinterlegen. Somit würden Sie in Zukunft durch uns ganz automatisch über neue Objekte informiert werden. Besuchen Sie hierzu bitte unsere eigene Homepage. Dort finden Sie im ´Footer´ den Link "Suchauftrag" bzw. Sie nutzen einfach folgenden Link: https://home4you.info
Bitte beachten Sie, dass wir als Doppelmakler sowohl für den Verkäufer als auch für den Käufer provisionspflichtig tätig sind.
Das gesamteTeam von home4you Immobilien in Köln sagt Herzlichen Dank für Ihr Vertrauen!
Verbindliche Grundlage hierfür bildet die spätere Baubeschreibung, der Optionsvertrag und/oder die notarielle Beurkundung.Bei Interesse erfragen Sie bitte unser ausführliches Exposé über unser Büro. Sie bevorzugen ein klassisches Print-Exposé? Sprechen Sie uns an!
Gerne ermöglichen wir Ihnen einen ersten, eindrucksvollen Besichtigungstermin. Überzeugen Sie sich in entspannter Atmosphäre von der Exklusivität und Einzigartigkeit dieses Anwesens und lassen Sie die Eindrücke vor Ort in aller Ruhe wirken.
Ein wichtiger Hinweis zum sensiblen Thema "EU-DSGVO":
Wenn Sie uns Ihre Daten über ein Immobilienportal (z.B. immobilienscout24.de) übermitteln, so werden Ihre Daten lediglich für vier Wochen aufbewahrt, um den Exposéversand sowie eine mögliche Terminvereinbarung für eine Objektbesichtigung möglich zu machen. Nach Ablauf der vier Wochen werden Ihre Daten unwiderruflich gelöscht! Wir werden Ihnen weder neue Angebote noch einen nicht erwünschten Newsletter zukommen lassen.
Selbstverständlich können Sie Ihr Immobiliengesuch in unserer Datenbank unverbindlich und kostenfrei dauerhaft hinterlegen. Somit würden Sie in Zukunft durch uns ganz automatisch über neue Objekte informiert werden. Besuchen Sie hierzu bitte unsere eigene Homepage. Dort finden Sie im ´Footer´ den Link "Suchauftrag" bzw. Sie nutzen einfach folgenden Link: https://home4you.info
Bitte beachten Sie, dass wir als Doppelmakler sowohl für den Verkäufer als auch für den Käufer provisionspflichtig tätig sind.
Das gesamteTeam von home4you Immobilien in Köln sagt Herzlichen Dank für Ihr Vertrauen!
Provision:
Es besteht die gesetzliche Pflicht zur Provisionsteilung nach §656c BGB, Käufer und Verkäufer zahlen 3% zzgl. gesetzlicher MwSt von 19% vom notariell beurkundeten Kaufpreis.3,57% (inkl. 19% MwSt.) vom Kaufpreis. Zu zahlen vom Käufer.
Anmerkung:
Die von uns gemachten Informationen beruhen auf Angaben des Verkäufers bzw. der Verkäuferin. Für die Richtigkeit und Vollständigkeit der Angaben kann keine Gewähr bzw. Haftung übernommen werden. Ein Zwischenverkauf und Irrtümer sind vorbehalten.
AGB:
Wir weisen auf unsere Allgemeinen Geschäftsbedingungen hin. Durch weitere Inanspruchnahme unserer Leistungen erklären Sie die Kenntnis und Ihr Einverständnis.
AUF WUNSCH empfehlen wir Ihnen Finanzierungsexperten von namhaften Häusern wie der Bausparkasse Mainz, der Deutschen Vermögensberatung und anderen.
Zurück zur Übersicht







































